Neubau Erweiterung Werkhof Pfäffikon

Auftraggeber: Baudirektion Kanton Zürich

Wettbewerb 2001 - 1. Rang

Fertigstellung 2006

Auszeichnung gutes Bauen Zürich Oberland 2007

Anerkennungspreis Lignum 2009

swiss-architects, Bau der Woche

Im Blickfeld der alten Römer

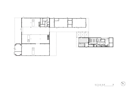
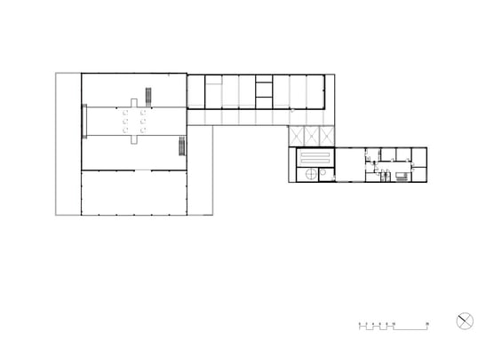
Weil der Kanton Zürich die Werkhöfe von Uster und Pfäffikon an einem Ort konzentrieren wollte, musste er die bestehende Einstellhalle in Pfäffikon erweitern. Das Areal liegt zwischen Bahnlinie und Strasse am südöstlichen Rand von Pfäffikon. Jenseits der Bahn ragt die Ruine des römischen Kastells empor und blickt über die Moorlandschaft, die sich bis zum nahen Ufer des Pfäffikersees erstreckt. Ein z-förmiger Anbau aus Werkhalle, Dienstgebäude und Salzsilo ergänzt die bestehende Halle und schafft zwei Höfe: den Vorplatz an der Hauptstrasse Pfäffikon-Wetzikon und den abgeschirmten Werkhof. Die Neubauten sind in Holz konstruiert und mit Holz verkleidet; wie eine textile Haut überziehen Lärchenschindeln die Gebäudeteile. Diese Haut unterstreicht die Plastizität der Baukörper und vermittelt zwischen den landwirtschaftlichen Bauten und der Landschaft einerseits und den Wohn- und Gewerbebauten andererseits. Mit den Jahren wird die hölzerne Fassade verwittern und sich – aus der Ferne betrachtet – den Natursteinmauern des Kastells annähern. Im Kontrast dazu bestehen die Deckenuntersichten und die grossen Tore aus transluzentem Fiberglas, das nachts leuchtet. Ein gelungener Zweckbau, dem das Architekturforum Zürcher Oberland 2007 den Baupreis Zürcher Oberland verliehen hat.

 

Werner Huber, Hochparterre

Download
Bauwerksdokumentation Werkhof Pfäffikon, Baudirektion Kanton Zürich
Bauwerksdokumentation_Werkhof_Pfaeffikon
Adobe Acrobat Dokument 1.7 MB

Mitarbeitende Hopf & Wirth Architekten:

Hans-Claus Frei, Patrick Bischof, Marcel Fisch, Sergio Marazzi

Planerteam:

Bauleitung / Kostenplanung: Schlatter Bauleitungen, Hagacher 7, 8342 Wernetshausen

Bauingenieur: Perolini + Renz AG, Stadthausstrasse 61, 8400 Winterthur

Ingenieur Holzbau: Holzbaubüro Reusser GmbH, Zur Kesselschmiede 29, 8400 Winterthur

HL-Ingenieur: Müller Pletscher AG, Paulstrasse 8, 8400 Winterthur

Sanitär Ingenieur: Hunziker & Urban AG, Glattalstrasse 76, Postfach 425, 8052 Zürich

Elektro Ingenieur: Riesen Elektroplanungs GmbH, Zeltweg 27, 8032 Zürich

Bauphysik: BWS Bauphysik AG, Hard 4, 8408 Winterthur